Rif: Smart 176
BRESCIA
BRESCIA - zona Mompiano - Costalunga
Da un importante architetto, progettista e insegnante bresciano — autore di opere di rilievo per il Comune, tra cui scuole, palazzi destinati ai servizi pubblici e prestigiose residenze private — è ora in vendita l'abitazione da lui stesso ideata, costruita e abitata, frutto della sua esperienza e conoscenza architettonica.
Si tratta di una villa indipendente situata in Costa Lunga, con splendida vista panoramica, edificata su un lotto di circa 2.000 mq di terreno. La costruzione è interamente realizzata in cemento armato, dalle fondamenta al tetto, garanzia di solidità e durata nel tempo. L'esterno è rivestito in pietra, richiamando il carattere classico delle architetture bresciane.
Dalla strada si accede all'abitazione tramite ingresso pedonale e carraio privato. È possibile parcheggiare in un box doppio oppure sotto il porticato.
All'interno troviamo:
ingresso, ampia zona giorno con caminetto e porta-finestra che conduce al terrazzo panoramico con vista sulla città;
sala da pranzo, cucina abitabile con dispensa e bagno di servizio. Dalla cucina si accede direttamente al giardino.
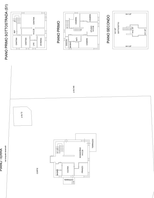
Al primo e ultimo piano si sviluppa la zona notte, composta da tre camere da letto, uno studio, una cabina armadio, un bagno e una doccia separata. È presente inoltre un sottotetto utilizzabile come studio.
Al piano terra (sottostrada) si trova un grande open space, stireria, lavanderia, bagno, locale caldaia e ripostiglio, con accesso diretto al giardino.
La villa è circondata da un ampio spazio verde, ideale per momenti di relax e con la possibilità di realizzare una piscina.
Si tratta di una villa indipendente situata in Costa Lunga, con splendida vista panoramica, edificata su un lotto di circa 2.000 mq di terreno. La costruzione è interamente realizzata in cemento armato, dalle fondamenta al tetto, garanzia di solidità e durata nel tempo. L'esterno è rivestito in pietra, richiamando il carattere classico delle architetture bresciane.
Dalla strada si accede all'abitazione tramite ingresso pedonale e carraio privato. È possibile parcheggiare in un box doppio oppure sotto il porticato.
All'interno troviamo:
ingresso, ampia zona giorno con caminetto e porta-finestra che conduce al terrazzo panoramico con vista sulla città;
sala da pranzo, cucina abitabile con dispensa e bagno di servizio. Dalla cucina si accede direttamente al giardino.
Al primo e ultimo piano si sviluppa la zona notte, composta da tre camere da letto, uno studio, una cabina armadio, un bagno e una doccia separata. È presente inoltre un sottotetto utilizzabile come studio.
Al piano terra (sottostrada) si trova un grande open space, stireria, lavanderia, bagno, locale caldaia e ripostiglio, con accesso diretto al giardino.
La villa è circondata da un ampio spazio verde, ideale per momenti di relax e con la possibilità di realizzare una piscina.
Consistenze
| Descrizione | Superficie | Sup. comm. |
|---|---|---|
| Principali | ||
| Immobile - 2° piano | 388 Mq | 388 Mqc |
| Totale | 388 Mqc | |
