Rif: Smart 175
BEDIZZOLE
BRESCIA
BEDIZZOLE: Spazi Introvabili e Massima Indipendenza
In Via Bagatte, proponiamo un'importante proprietà cielo-terra di oltre 900 mq complessivi, perfetta per investitori, imprese o due nuclei familiari.
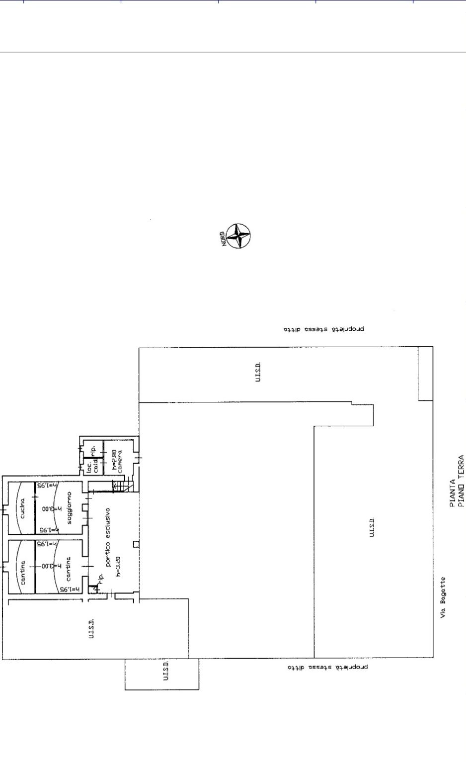
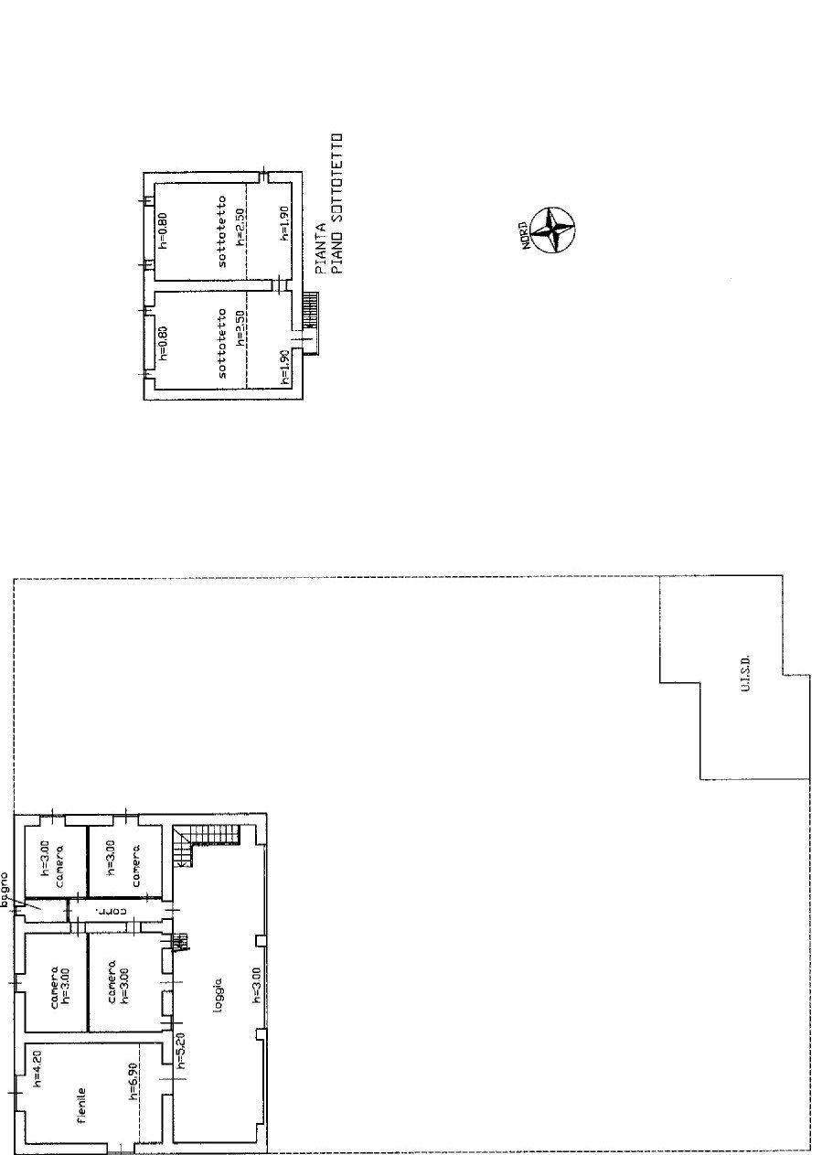
L'abitazione di 280 mq si distingue per il carattere dei locali al piano terra (ex stalla e ampie zone servizio) e la spaziosità del primo piano, dove troviamo quattro camere e una splendida terrazza vivibile di generose metrature, ideale per creare un'area relax all'aperto introvabile. La struttura si presta a una ristrutturazione totale verso la Classe A4, con la possibilità di ricavare due unità distinte.
Completano la proprietà 614 mq di magazzini e un giardino privato. Una soluzione luminosa e versatile, che unisce il potenziale di una villa moderna alla praticità di enormi spazi operativi.
Indipendenza, ampi volumi e uno sfogo esterno d'eccellenza.
Per ulteriori informazioni chiamare allo 030 8996132. Disponiamo di professionisti per l'ottenimento del mutuo adatto alle tue esigenze.
In Via Bagatte, proponiamo un'importante proprietà cielo-terra di oltre 900 mq complessivi, perfetta per investitori, imprese o due nuclei familiari.
L'abitazione di 280 mq si distingue per il carattere dei locali al piano terra (ex stalla e ampie zone servizio) e la spaziosità del primo piano, dove troviamo quattro camere e una splendida terrazza vivibile di generose metrature, ideale per creare un'area relax all'aperto introvabile. La struttura si presta a una ristrutturazione totale verso la Classe A4, con la possibilità di ricavare due unità distinte.
Completano la proprietà 614 mq di magazzini e un giardino privato. Una soluzione luminosa e versatile, che unisce il potenziale di una villa moderna alla praticità di enormi spazi operativi.
Indipendenza, ampi volumi e uno sfogo esterno d'eccellenza.
Per ulteriori informazioni chiamare allo 030 8996132. Disponiamo di professionisti per l'ottenimento del mutuo adatto alle tue esigenze.
Consistenze
| Descrizione | Superficie | Sup. comm. |
|---|---|---|
| Principali | ||
| Immobile - piano terra | 900 Mq | 900 Mqc |
| Totale | 900 Mqc | |
